Home  
Map  


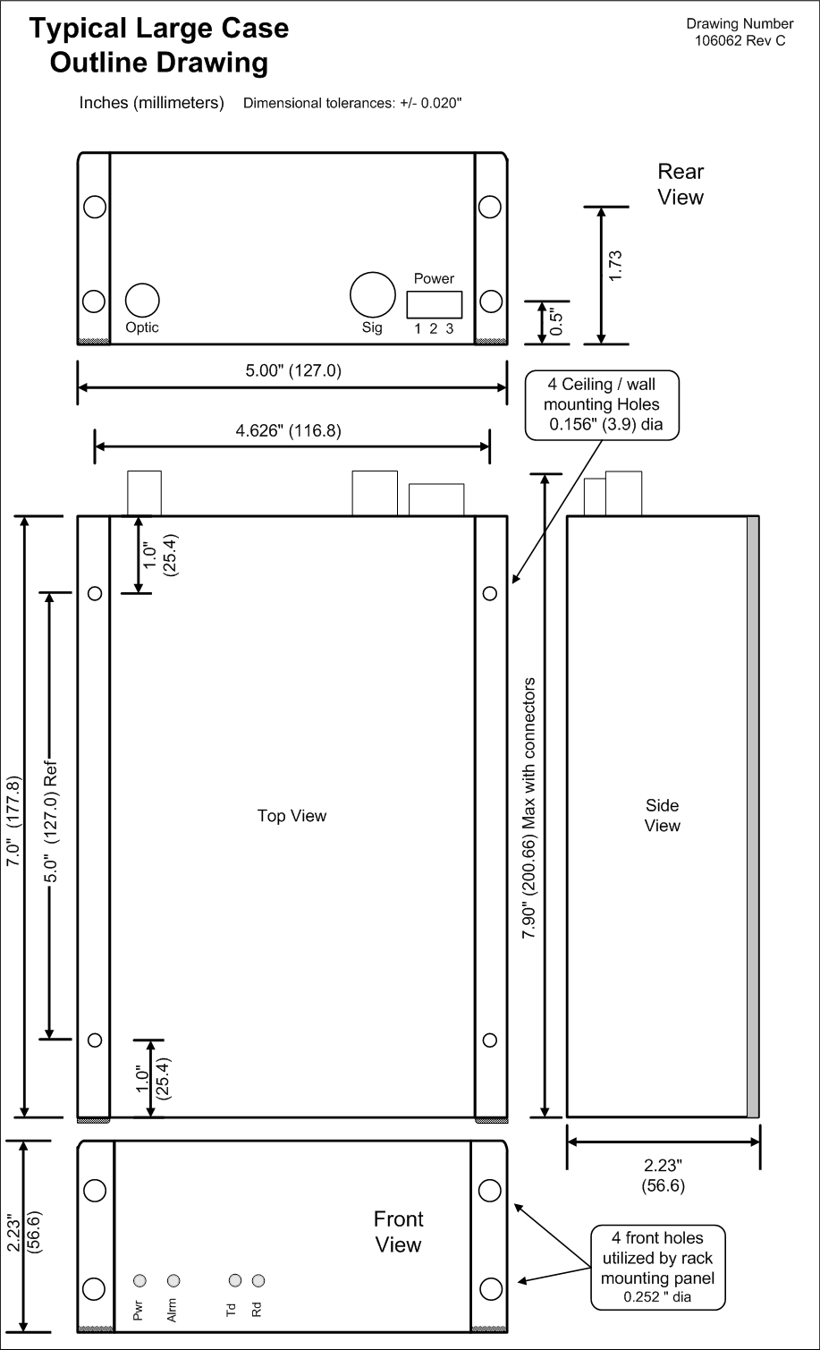
Large Case Outline

GIF Version                      PDF Version

 Click for GIF Version

Products with the Large case outline occupy two positions in the rack mounting panel.
Example product in this configuration is the PS-1260, 6 Amp power supply.


 


LuxLink

Voice: 1-516-931-2800

Email:  Contact Us